Inhoud blog
  • Enkele foto's
  • Een maandje verder
  • Ontgoocheling
  • We zitten niet stil
  • Tegels zijn geleverd!
    Zoeken in blog

    Archief per maand
  • 05-2011
  • 04-2011
  • 03-2011
  • 02-2011
  • 01-2011
  • 12-2010
  • 11-2010
  • 10-2010
  • 09-2010
  • 08-2010
  • 07-2010
  • 06-2010
  • 05-2010
  • 04-2010
  • 03-2010
  • 02-2010
  • 01-2010
    E-mail mij

    Druk op onderstaande knop om mij te e-mailen.

    Gastenboek
  • Proficiat
  • hoi!!
  • Welkom, en veel plezier met je nieuwe blog

    Druk oponderstaande knop om een berichtje achter te laten in mijn gastenboek

    Dankzij deze mensen wordt ons huisje gebouwd :
  • Abric (bouwcoördinator)
  • Atrio (architectenbureau)
  • Gemabo (ruwbouw)
  • Franken Stefan BVBA (dakwerken)
  • HC-Trans (opslagcontainer)
  • Plafonneerwerken Garello (bepleistering)
  • Vlieghe (ramen en deuren)
  • Selfmatic (materiaal elektriciteit, verwarming,...)
  • Wat staat er op de agenda?

    Belangrijke data in mijn agenda

    Spelvojestraat 30, 3500 Hasselt
    Onze bouw van begin tot eind...
    30-03-2010
    Klik hier om een link te hebben waarmee u dit artikel later terug kunt lezen.Nog meer grond, de straat is bijna af.

    De grond gisteren nog eens bezocht...

















    30-03-2010 om 21:04 geschreven door Yoke  

    0 1 2 3 4 5 - Gemiddelde waardering: 0/5 - (0 Stemmen)
    22-03-2010
    Klik hier om een link te hebben waarmee u dit artikel later terug kunt lezen.Plannen en kiezen

    We hebben de definitieve plannen ook ontvangen. Joepie!

     

    18 mei mogen we gaan materialen kiezen : gevelstenen, dakpannen, trap, badkamer,... Nog ZO lang wachten...




    22-03-2010 om 18:39 geschreven door Yoke  

    0 1 2 3 4 5 - Gemiddelde waardering: 0/5 - (0 Stemmen)
    20-03-2010
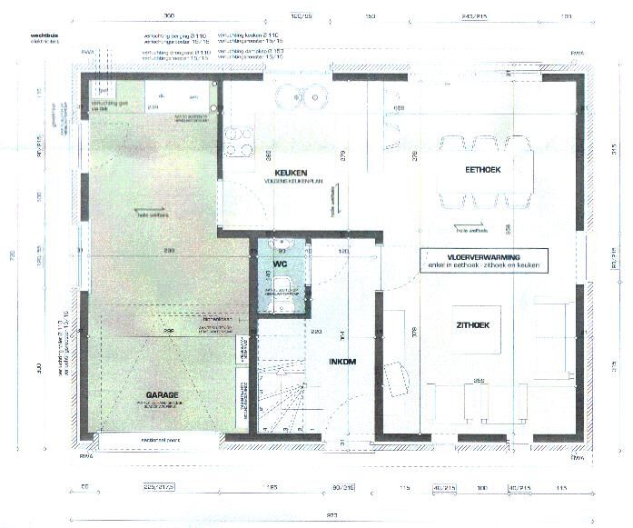
    Klik hier om een link te hebben waarmee u dit artikel later terug kunt lezen.Plannen zijn gemaakt

    De architect zit er sinds woensdag ook op. Het plan werd wel gespiegeld, want anders zou er dankzij de stad Hasselt een boom vlak voor onze garage staan. Verder alles in orde, bouwaanvraag werd verstuurd. Ligt het aan mij of gaat het vlotjes?

    20-03-2010 om 17:40 geschreven door Yoke  

    0 1 2 3 4 5 - Gemiddelde waardering: 0/5 - (0 Stemmen)
    15-03-2010
    Klik hier om een link te hebben waarmee u dit artikel later terug kunt lezen.Grondeigenaars

    De akte is getekend en we zijn nu officieel :

    GRONDEIGENAARS!

    "Papiertje ondertekenen en het is van ons", veel meer was er niet aan.

    15-03-2010 om 00:00 geschreven door Yoke  

    0 1 2 3 4 5 - Gemiddelde waardering: 0/5 - (0 Stemmen)
    14-03-2010
    Klik hier om een link te hebben waarmee u dit artikel later terug kunt lezen.De tussenstand

    Gisteren voor de laatste keer (normaal toch) naar de bank geweest. Alle papieren zijn daar toch al getekend. Deze keer gelukkig wel een vriendelijke en duidelijke man gehad die de uitleg eens heeft overgedaan op een goeie manier.

    Morgen naar de notaris, ook de laatste keer. Het gaat wel een tijdje kunnen duren, want ons testament moet getekend worden. Gek hoor, nog geen 25 zijn en een testament moeten opstellen. Maar dan wordt de akte ondertekend, de betaling is gedaan van de grond en dan... zijn we officiële grondbezitters. Niet veel aan, met enkel grond kunnen we nog niet veel doen natuurlijk, tenzij patatten planten.

    En woensdag kunnen we een ander gedeelte afronden : de architect. We hebben onlangs het voorlopig plan gekregen en buiten een kleine aanpassing, was het in orde. Woensdag krijgen we dan het definitieve plan en wordt de bouwaanvraag gedaan.

    Dan zijn we toch al weer een hele stap verder, want dit was nu niet zo enorm druk of zo, maar het was toch voor de architect hollen naar Antwerpen en bij de notaris toch wat saaier, dus dan kunnen we beginnen met denken over de leukere dingen : materialen en kleuren en zo, en dan... AFTELLEN!

    Ik kan niet meer wachten om in te pakken en naar het huisje te verhuizen.

     

    14-03-2010 om 10:34 geschreven door Yoke  

    0 1 2 3 4 5 - Gemiddelde waardering: 0/5 - (0 Stemmen)



    Foto


    Blog tegen de wet? Klik hier.
    Gratis blog op https://www.bloggen.be - Meer blogs